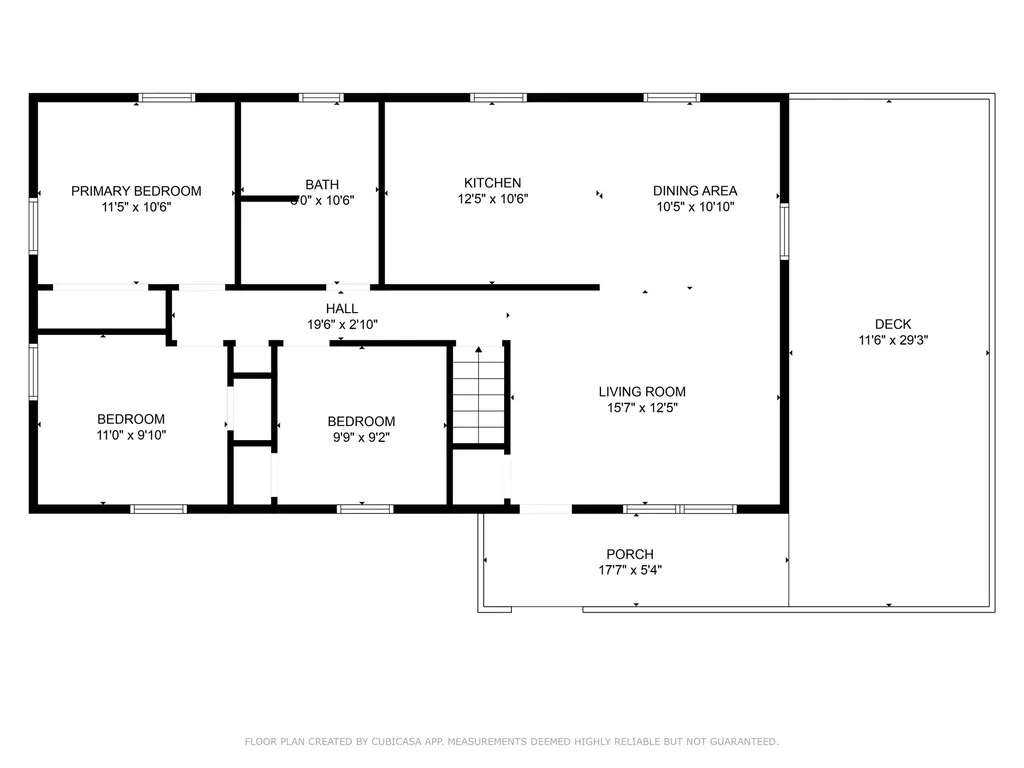
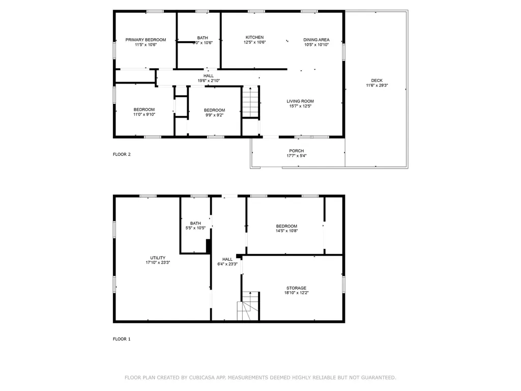
Nestled on a peaceful hillside in the town of Andover, this well-maintained home offers the soothing sounds of the Andover Branch River as your daily backdrop. Enjoy the ease of one-level living with three bedrooms, a full bathroom, and a comfortable main living space perfect for relaxing or entertaining. The walkout basement adds even more potential. Already underway is a second full bathroom and a bonus room, complete with closet. Electrical and plumbing are in place, and hardwood flooring, a vanity, and a toilet are ready for installation by the new owner. Whether you choose to finish it as an in-law suite, rental unit, or additional living space, the possibilities are plentiful. Step outside onto the brand-new 582-square-foot deck and take in the tranquil sights and sounds of nature-birdsong, breezes, and the gentle river flow. An open level yard is perfect for outdoor games or fire pit. For those seeking extra functionality, a poured concrete slab is ready for a future barn or garage, complete with electric and water hookups. This unique property combines comfort, nature, and future potential in one beautiful setting. For all the mountain enthusiasts the property is located 11 miles from Okemo Resort and 8 Miles form Magic Mtn.

Listing Tools (detailViewNewGen)

Property Details

Interior Features

Exterior Features

Utilities and Appliances

Community

Map Location

Listed by Jessica Citera of Cummings & Co

Listing Sold by Southern Vermont Realty Group
Broker Reciprocity 

Copyright 2026 PrimeMLS, Inc. All rights reserved. This information is deemed reliable, but not guaranteed. The data relating to real estate displayed on this display comes in part from the IDX Program of PrimeMLS. The information being provided is for consumers’ personal, non-commercial use and may not be used for any purpose other than to identify prospective properties consumers may be interested in purchasing. Data last updated January 20, 2026 6:38 PM EST

 

Hi there! How can we help you?

Contact us using the form below or give us a call.

Send Us A Message:

I agree to receive marketing and customer service calls and text messages from Nancy Jenkins Real Estate. To opt out, you can reply 'stop' at any time or click the unsubscribe link in the emails. Consent is not a condition of purchase. Msg/data rates may apply. Msg frequency varies. Privacy Policy.

Do not fill in this field:

This site is protected by reCAPTCHA and the Google Privacy Policy and Terms of Service apply.