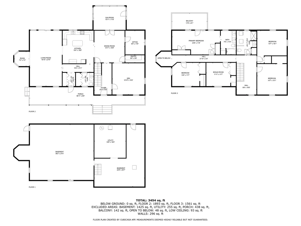
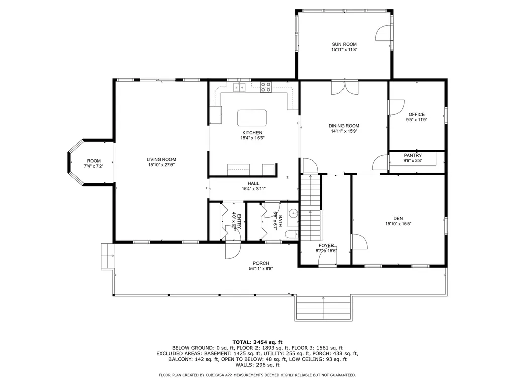
**NEW PRICE** Welcome To 4351 Crown Point Road in the Town of Bridport. This West Addison County gem offers buyers the best of both worlds - a home consisting of an 1850s farmhouse retaining all of those well-loved period features, as well as a large modern 1990s contemporary addition. This ensures just the right blend of charm and updated conveniences, for the everyday modern lifestyle. Boasting in excess of 3700 SQFT of finished living space, the 1st floor offers the right balance of open spaces and separation including an office, living room, family room, sunroom, & convenient 1/2 bath. Upstairs you'll find 4 bedrooms plus a 5th bonus room, all are of a good proportion. The primary bedroom suite has vaulted ceilings, its own bathroom as well as a spacious balcony - ideal for relaxing on and savoring those southwesterly views! The addition was architecturally designed to house space for a spiral staircase leading from the bedroom hallway directly into the family room, this final step awaits the next family to complete when time and focus allows! All the important aspects of the house have been taken care of, from the solid standing seam roof to the immaculate siding and trim work. The modern heating & cooling systems include 4 zones, radiant heat in the majority of the 1st floor, 4 AC heat pumps, and the major benefit of (owned) solar panels. Outside enjoy 4 magical acres. Peaceful setting, yet located close to Middlebury, Addison Central School District, & easy access to NY.

Listing Tools (detailViewNewGen)

Property Details

Interior Features

Exterior Features

Utilities and Appliances

Community

Map Location

Listed by Michael O'Dowd of KW Vermont (Phone: 802-598-7169)
Broker Reciprocity 

Copyright 2026 PrimeMLS, Inc. All rights reserved. This information is deemed reliable, but not guaranteed. The data relating to real estate displayed on this display comes in part from the IDX Program of PrimeMLS. The information being provided is for consumers’ personal, non-commercial use and may not be used for any purpose other than to identify prospective properties consumers may be interested in purchasing. Data last updated February 17, 2026 4:37 AM EST

 

Hi there! How can we help you?

Contact us using the form below or give us a call.

Send Us A Message:

I agree to receive marketing and customer service calls and text messages from Nancy Jenkins Real Estate. To opt out, you can reply 'stop' at any time or click the unsubscribe link in the emails. Consent is not a condition of purchase. Msg/data rates may apply. Msg frequency varies. Privacy Policy.

Do not fill in this field:

This site is protected by reCAPTCHA and the Google Privacy Policy and Terms of Service apply.