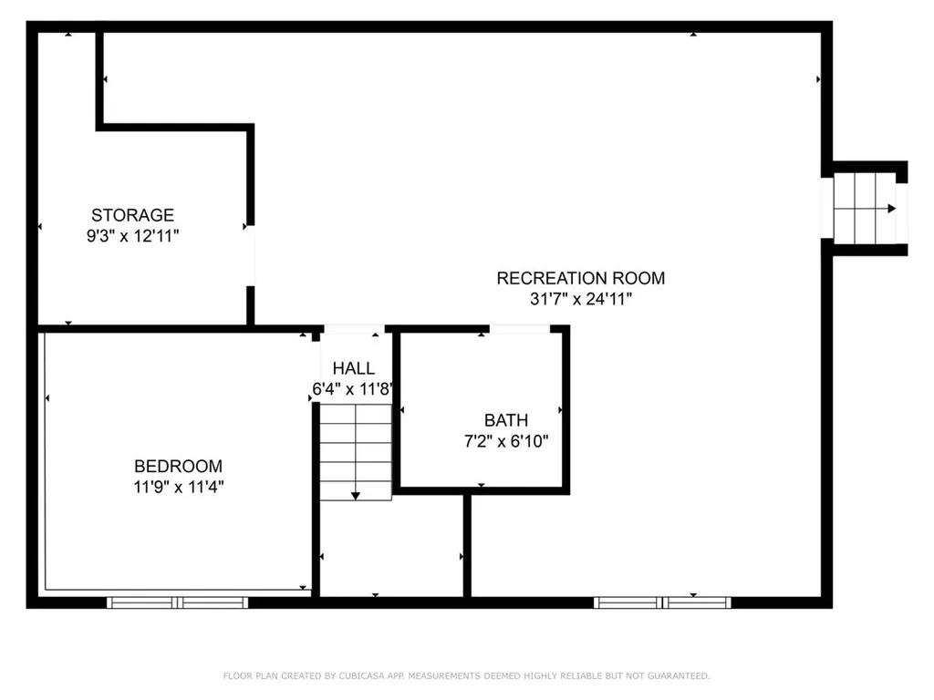
Welcome to this beautifully updated raised ranch with multiple additions, tucked away in a quiet neighborhood with no thru traffic-perfect for peace and privacy. Designed with comfort and functionality in mind, this home offers plenty of space for a large family to spread out and enjoy. Inside, you'll find modern updates throughout, including 4 efficient mini-splits for year-round comfort, as well as two additions that currently host an office space and a living room with vaulted contemporary-style ceilings. The open layout flows seamlessly between living spaces, making it easy to entertain or simply relax at home. Step outside to a fully fenced backyard, ideal for children, pets, or summer gatherings. Walk along the brand new walkway, where you're greeted with new siding and a gleaming new front door. And for those who are handy or need extra storage, the oversized garage provides ample room for tools, projects, and hobbies. This move-in ready home combines modern renovations with a family-friendly design-all in a private, peaceful setting. The basement space offers the perfect setup to start your own in-home daycare, as it was used for this in the past. The additional storage under the living room addition presents a climate-friendly place to store things! Take advantage of this rare opportunity to own a unique property in a quiet neighborhood, completely turn key.

Listing Tools (detailViewNewGen)

Property Details

Interior Features

Exterior Features

Utilities and Appliances

Community

Map Location

Listed by Aaron Scowcroft of Northern Vermont Realty Group
Broker Reciprocity 

Copyright 2025 PrimeMLS, Inc. All rights reserved. This information is deemed reliable, but not guaranteed. The data relating to real estate displayed on this display comes in part from the IDX Program of PrimeMLS. The information being provided is for consumers’ personal, non-commercial use and may not be used for any purpose other than to identify prospective properties consumers may be interested in purchasing. Data last updated November 16, 2025 3:52 AM EST

 

Hi there! How can we help you?

Contact us using the form below or give us a call.

Send Us A Message:

I agree to receive marketing and customer service calls and text messages from Nancy Jenkins Real Estate. To opt out, you can reply 'stop' at any time or click the unsubscribe link in the emails. Consent is not a condition of purchase. Msg/data rates may apply. Msg frequency varies. Privacy Policy.

Do not fill in this field:

This site is protected by reCAPTCHA and the Google Privacy Policy and Terms of Service apply.