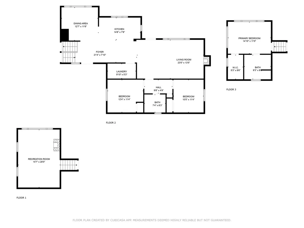
Envision owning nearly 500 feet of pristine shale beach along Lake Champlain, complete with panoramic views and mesmerizing sunsets over the Adirondack Mountains. Nestled within one of Mallets Bay's secluded coves, this extraordinary property has been meticulously updated both inside and out in recent years. Enhancements include a newer septic system, windows, siding, roof, and multiple heat pumps for AC. The interior boasts an open-concept kitchen that flows seamlessly into a spacious sitting area and an inviting family room featuring a wood-burning fireplace. On one side of the house, two generous bedrooms currently outfitted with bunk beds share a full bath. The other side hosts a primary bedroom suite complete with a tiled walk-in shower and an oversized closet. A few steps down from the front entrance leads to a game and TV room, featuring a second wood-burning fireplace, perfect for unwinding after an exhilarating day on the lake. The exterior spans the lakeshore, providing multiple pathways to your private lakefront haven. Newer staircases and walkways ensure safe and convenient navigation around the property. The lakeside of the home features a deck ideal for outdoor entertaining, along with a lower patio area adorned with Adirondack chairs encircling a fire pit, all overlooking the tranquil lake. This property promises endless lakefront memories, a variety of water activities, and the capability to moor multiple boats. SOLD furnished! Showings start 5/27.

Listing Tools (detailViewNewGen)

Property Details

Interior Features

Exterior Features

Utilities and Appliances

Community

Other Details

Map Location

Listed by Ernie Rossi of Rossi & Riina Real Estate

Listing Sold by Geri Reilly Real Estate
Broker Reciprocity 

Copyright 2026 PrimeMLS, Inc. All rights reserved. This information is deemed reliable, but not guaranteed. The data relating to real estate displayed on this display comes in part from the IDX Program of PrimeMLS. The information being provided is for consumers’ personal, non-commercial use and may not be used for any purpose other than to identify prospective properties consumers may be interested in purchasing. Data last updated February 17, 2026 2:37 AM EST

 

Hi there! How can we help you?

Contact us using the form below or give us a call.

Send Us A Message:

I agree to receive marketing and customer service calls and text messages from Nancy Jenkins Real Estate. To opt out, you can reply 'stop' at any time or click the unsubscribe link in the emails. Consent is not a condition of purchase. Msg/data rates may apply. Msg frequency varies. Privacy Policy.

Do not fill in this field:

This site is protected by reCAPTCHA and the Google Privacy Policy and Terms of Service apply.